Сдам коммерческую недвижимость в Томске

Коммерческая недвижимость в Томске
Цена 99 999 р.
Вид недвижимости Производственные помещения
Адрес ул. Мокрушина
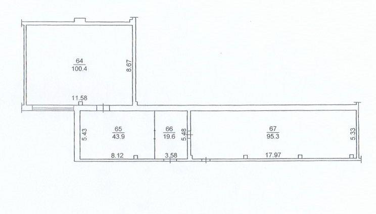
Площадь помещения 400 м2
Сдам производственно-складское помещение:<br /> Адрес – Томск, ул. Мокрушина, 9А, стр. 30.<br /> Площадь – 260 квадратных метров + антресоли 140 квадратных метров.<br /> Итого полезная площадь – 400 квадратных метров.<br /> Помещение тёплое, имеются офисы, комнаты для нужд персонала, центральное водоснабжение и канализация. Удобные подъездные пути для большегрузной техники, в том числе еврофур.<br /> Стоимость аренды 99 999 рублей в месяц
Объявление № 24029444
Дата подачи:
16 апреля 2026 г. 23:32
Дата обновления:
16 апреля 2026 г. 0:00
Просмотров 1 Хотите продать быстрее?

Продавец
Агентство недвижимости:
Сергей
email: 205.000@mail.ru
Показать номер телефона
Пожаловаться
Комментарии:
Добавить